Если цена в объявлении изменится, мы сразу сообщим вам об этом на электронную почту.
Нажимая «Подписаться», вы соглашаетесь с правилами.
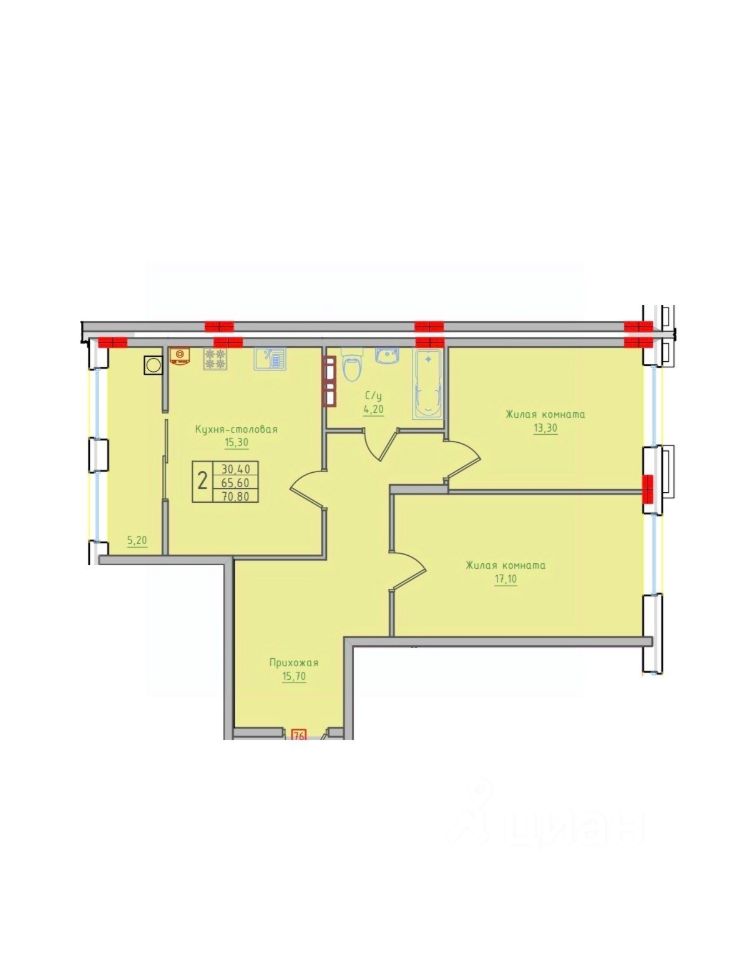
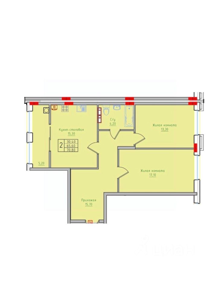
продам 2-к, Имени Героя России Владимира Жоги, 11а6 479 000 ₽
6 июня 2025
Дата публикации объявления
Обн. 30 апр
Дата обновления объявления
10
Количество просмотров (+ просмотры за сегодня)
Спецпредложение
Турбо x8
91 511 ₽/м²
Чистая продажа
Термин "Чистая продажа" означает, что в квартире никто не прописан или
есть куда выписаться и вывезти вещи. Это лучший вариант для покупателя.
Вероятность срыва сделки минимальна.